最新消息
︱
競賽辦法
設計競賽
程式競賽
外語影片競賽
全能英語挑戰賽
︱
得獎/參賽作品
第三屆 設計競賽
第三屆 外語競賽
第四屆 設計競賽
第四屆 外語競賽
報名登入
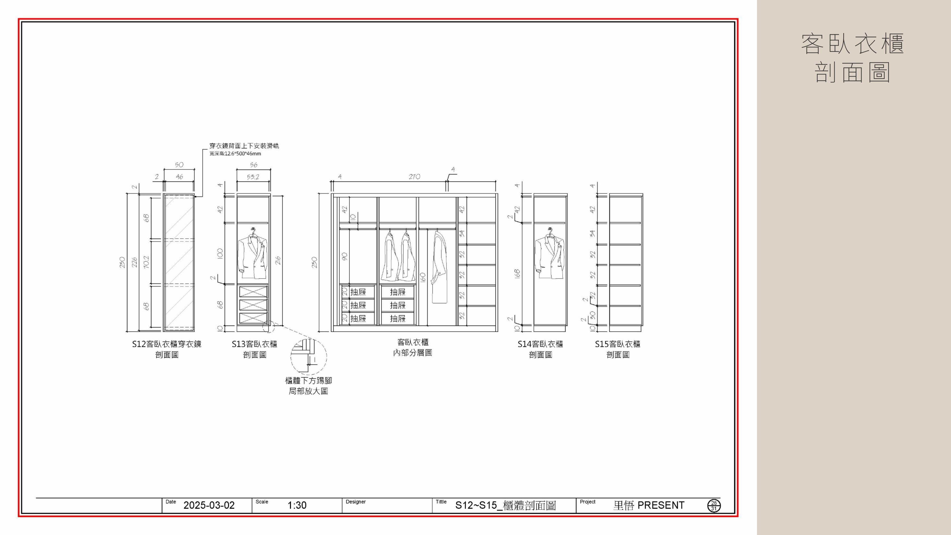
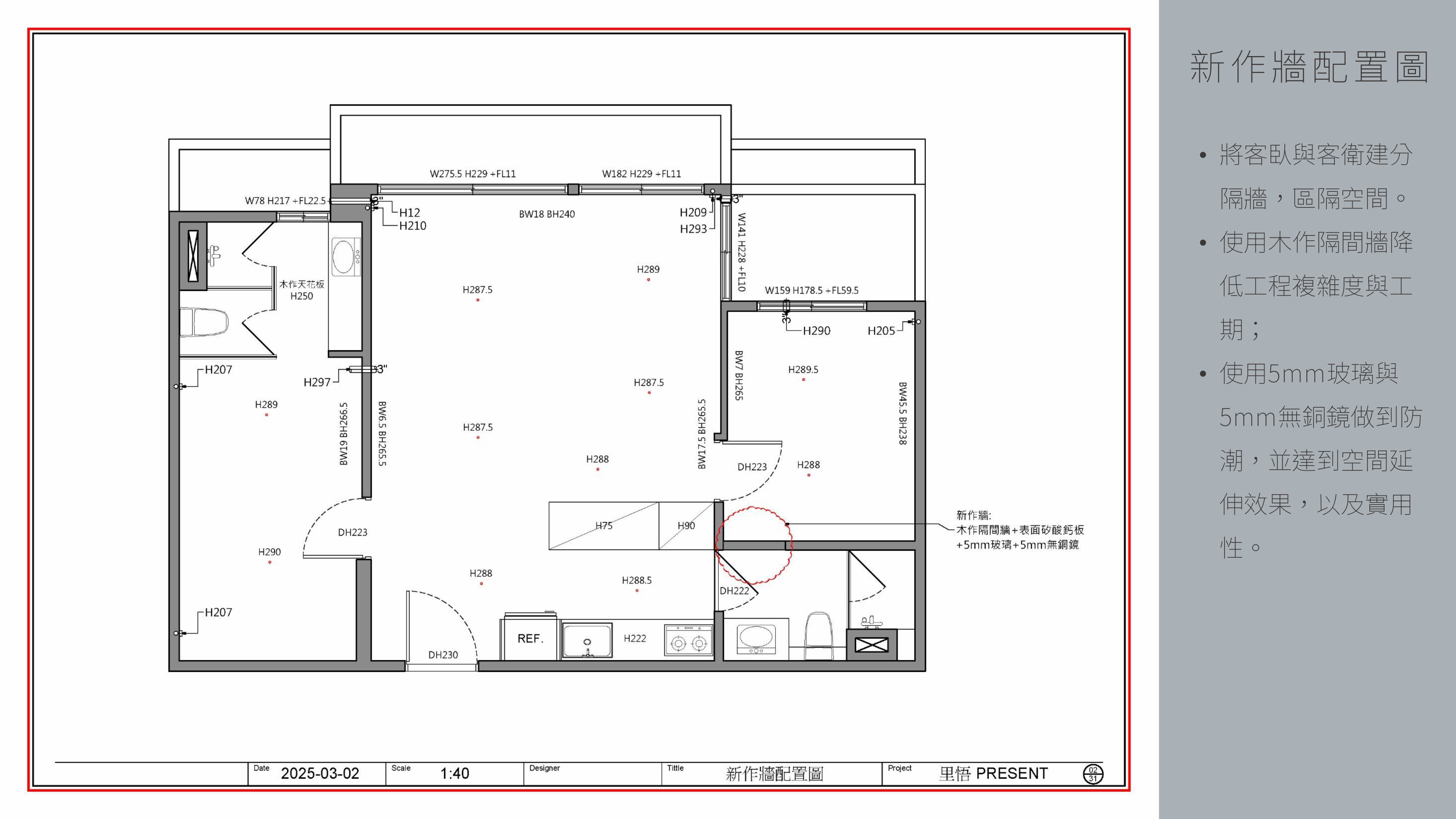
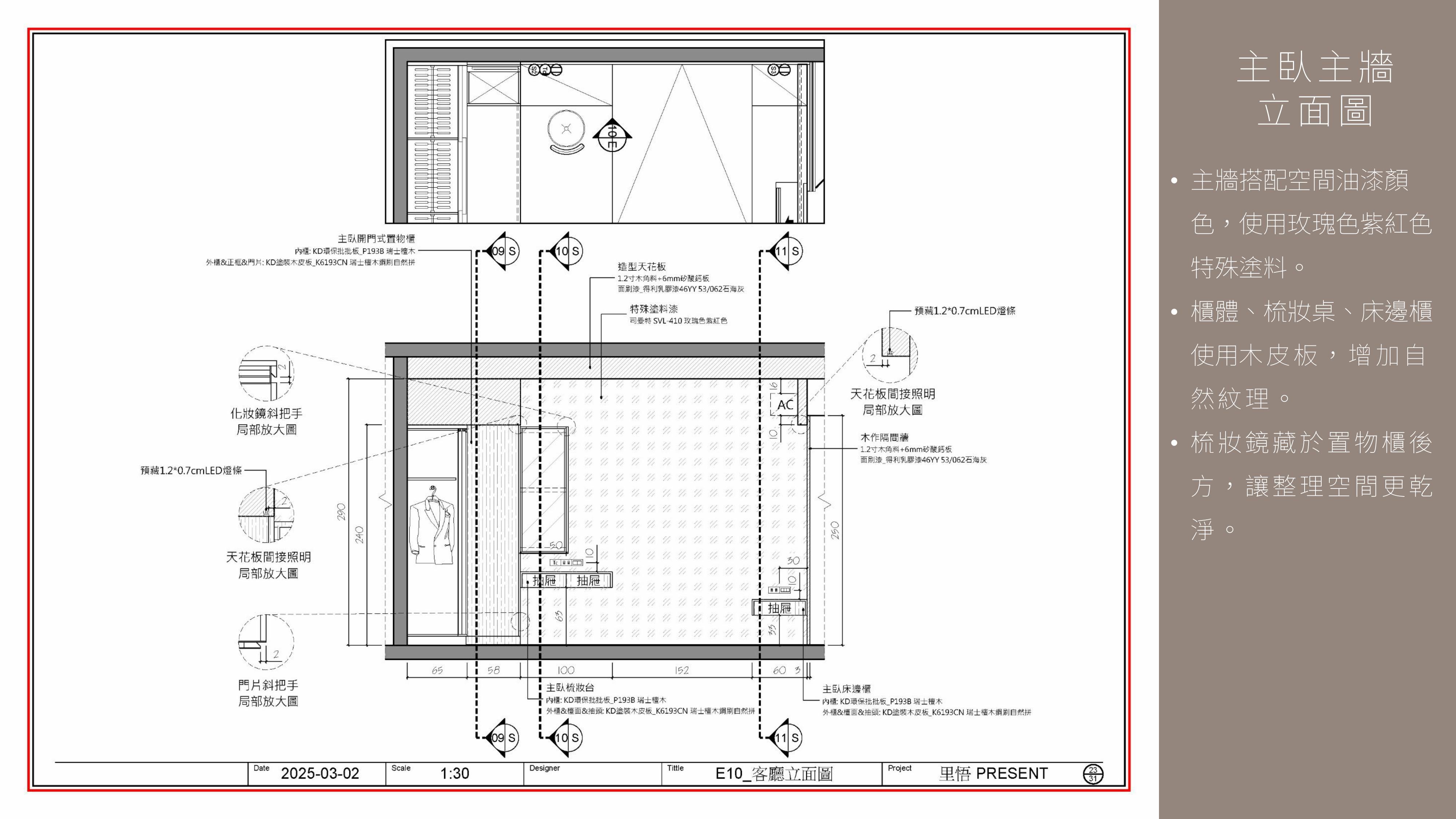
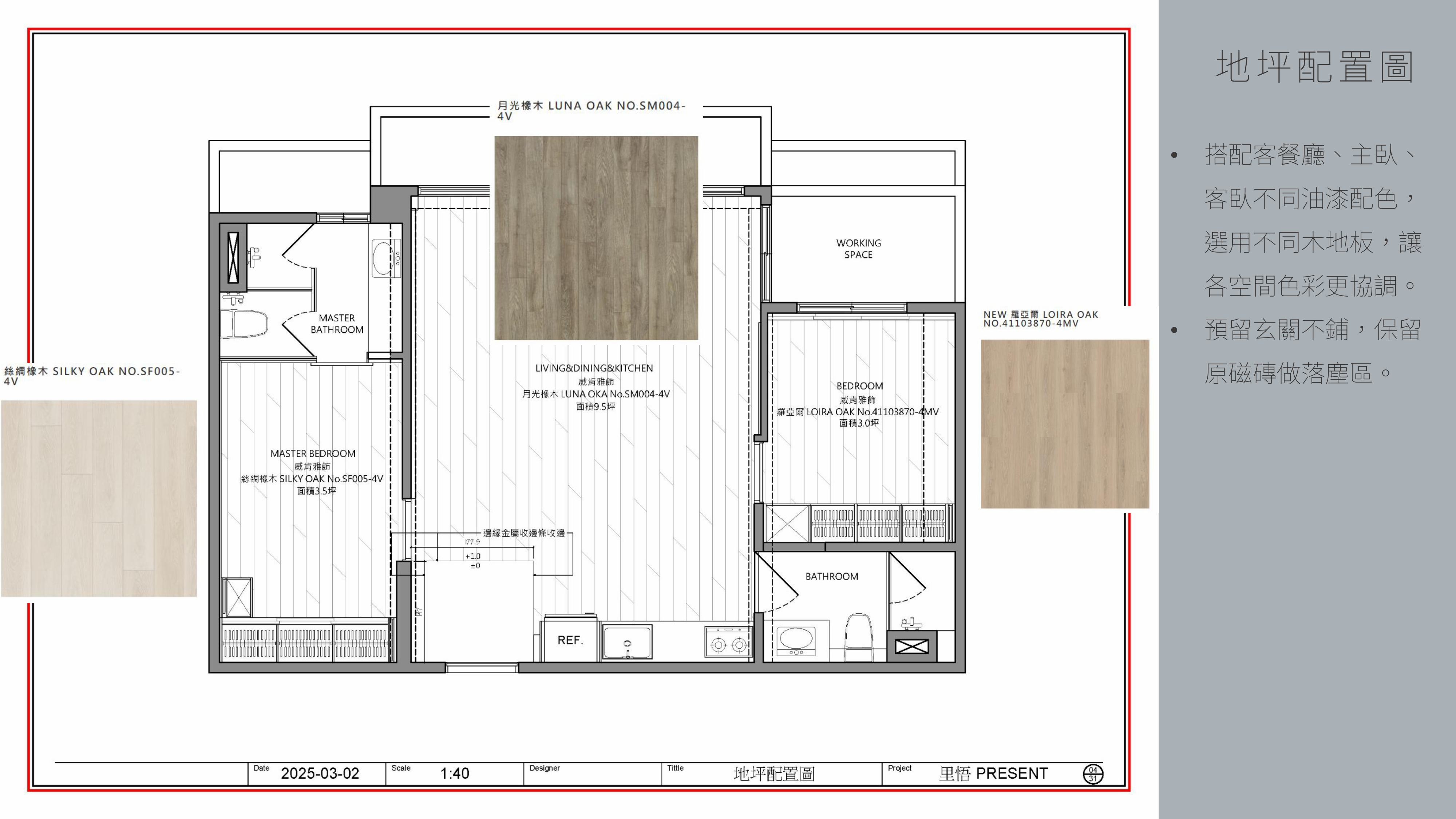
設計競賽作品
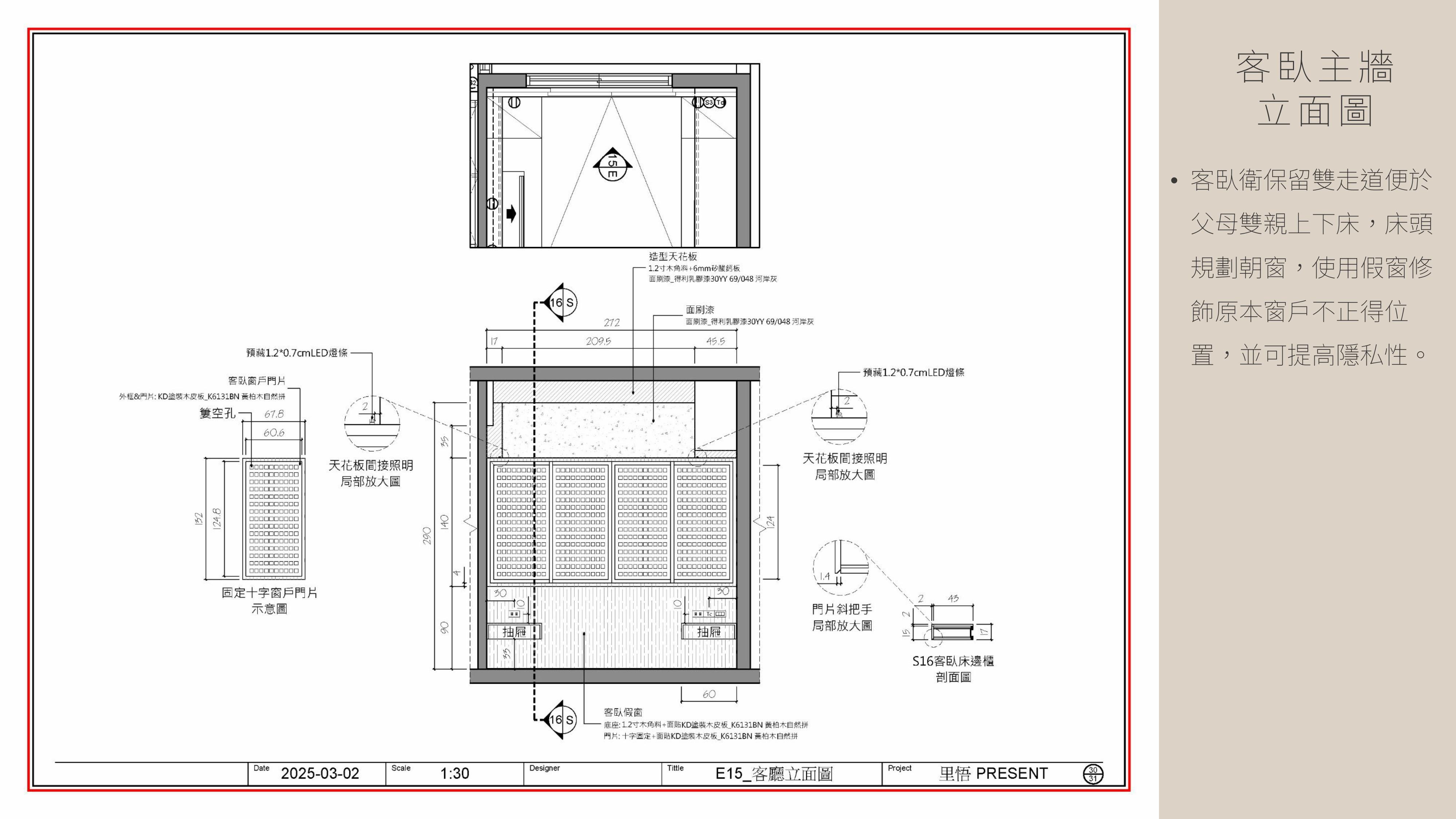
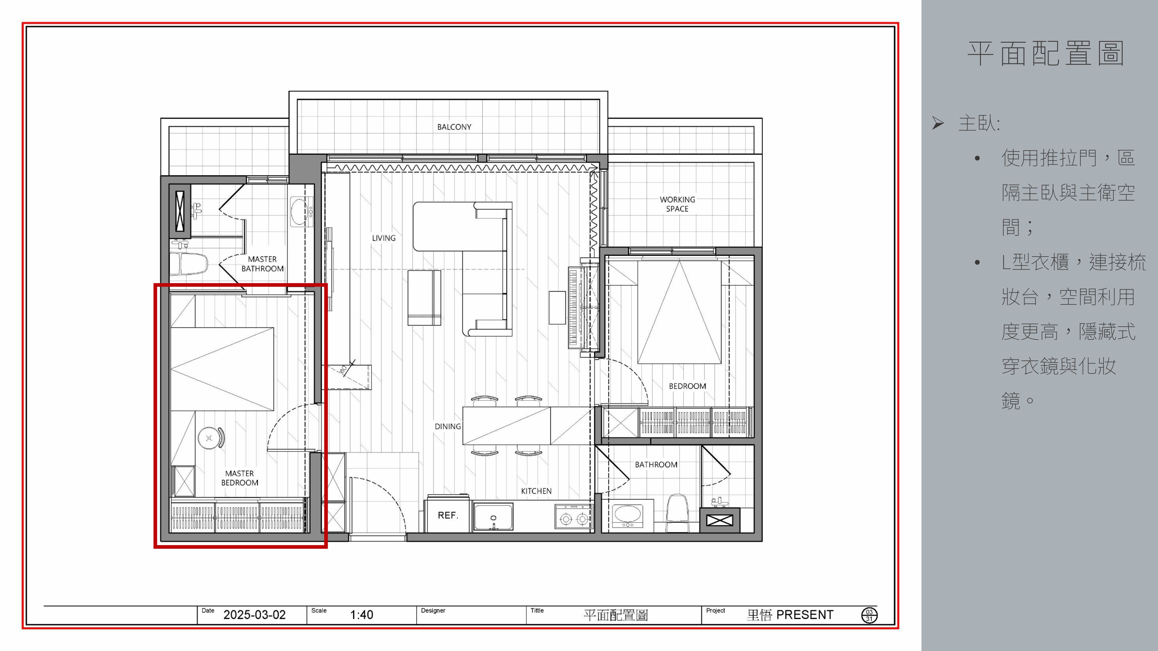
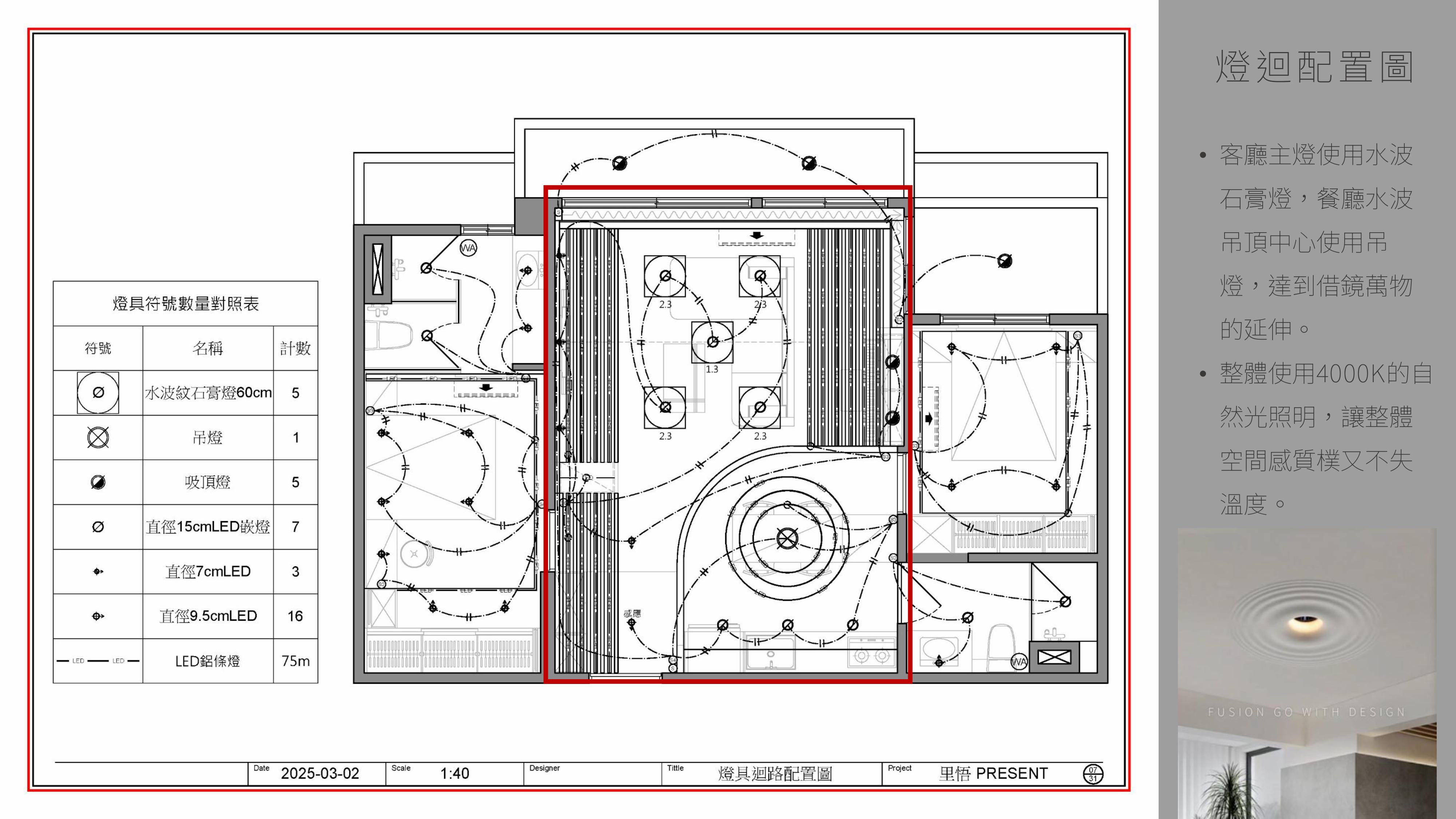
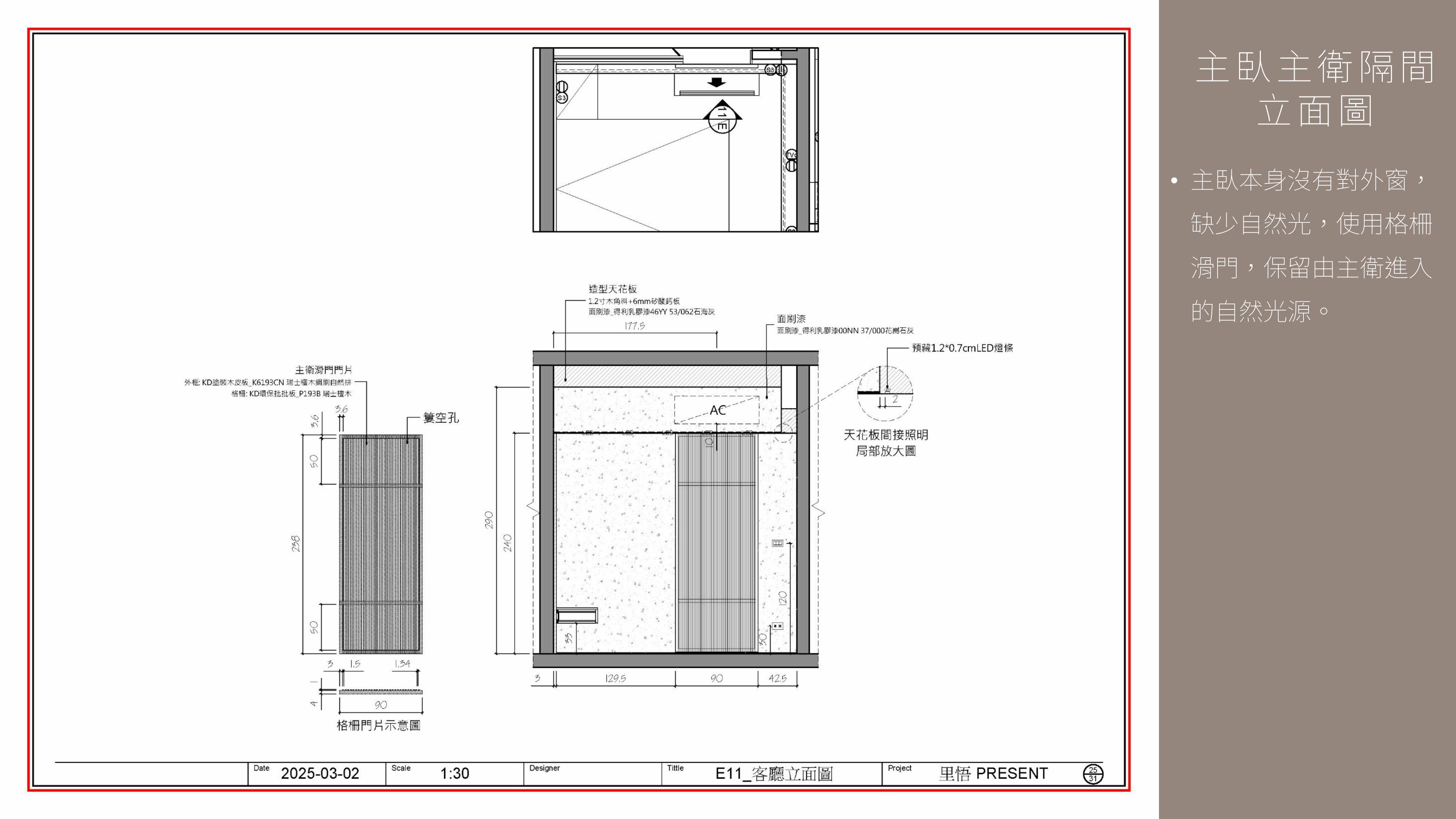
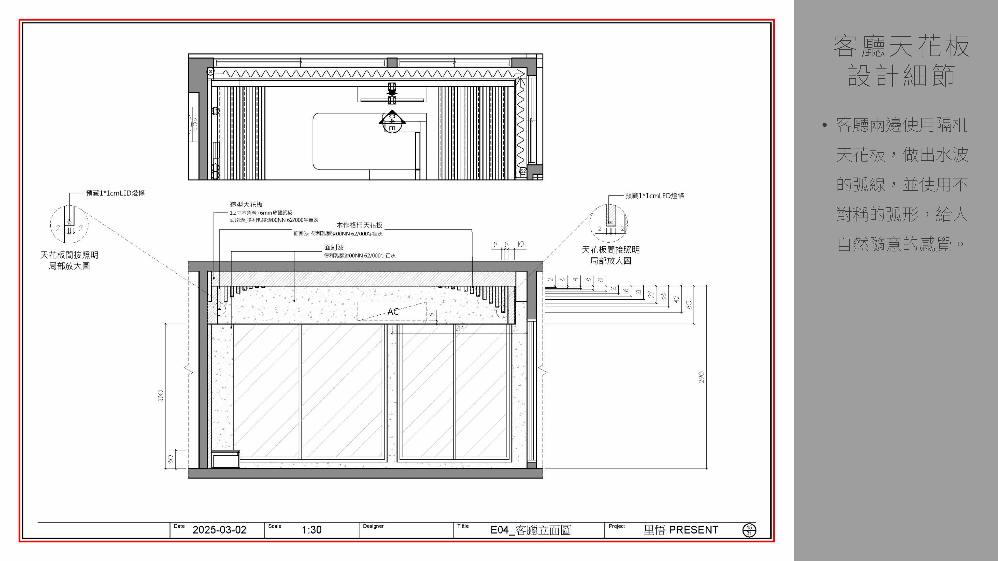
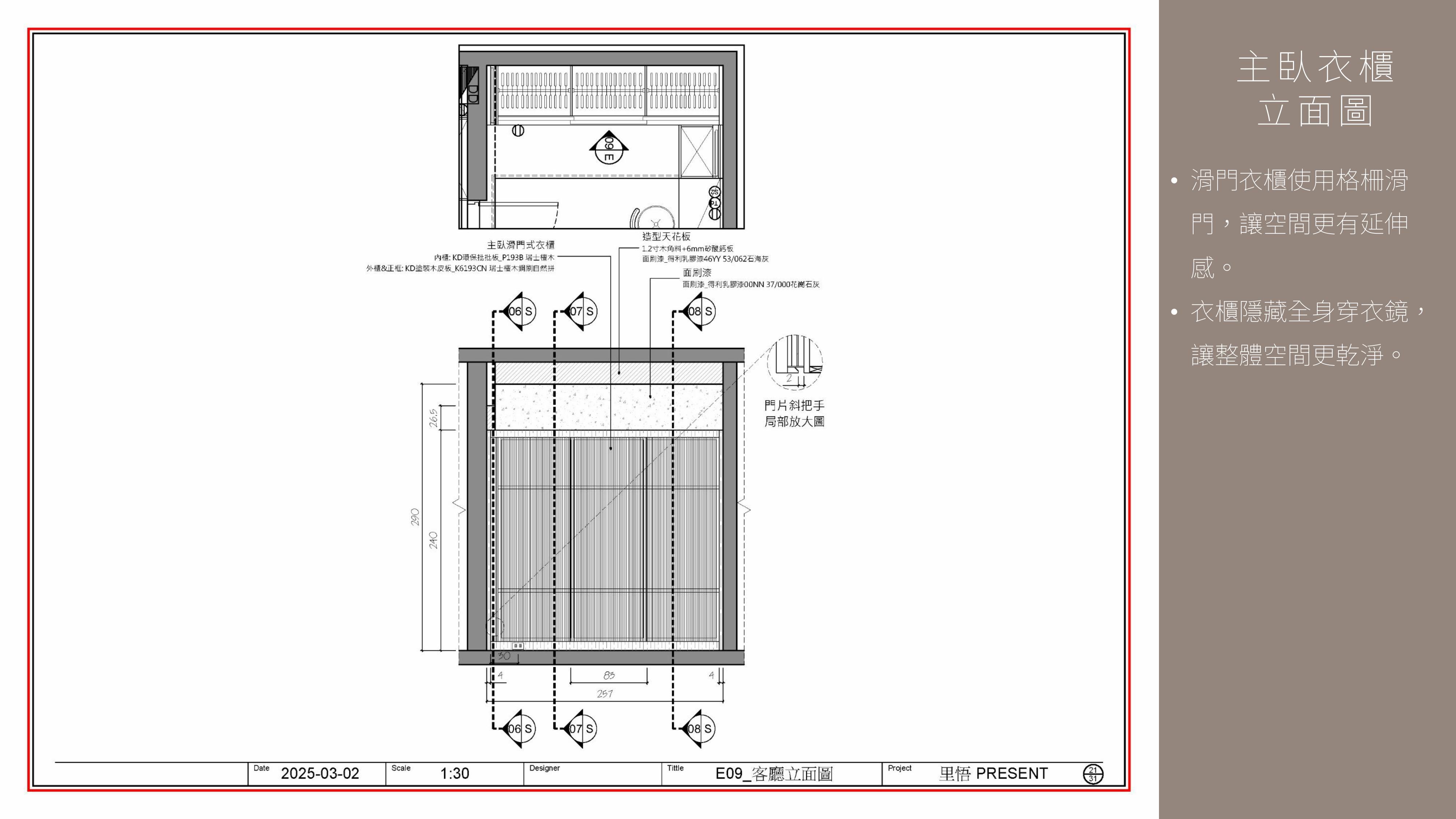
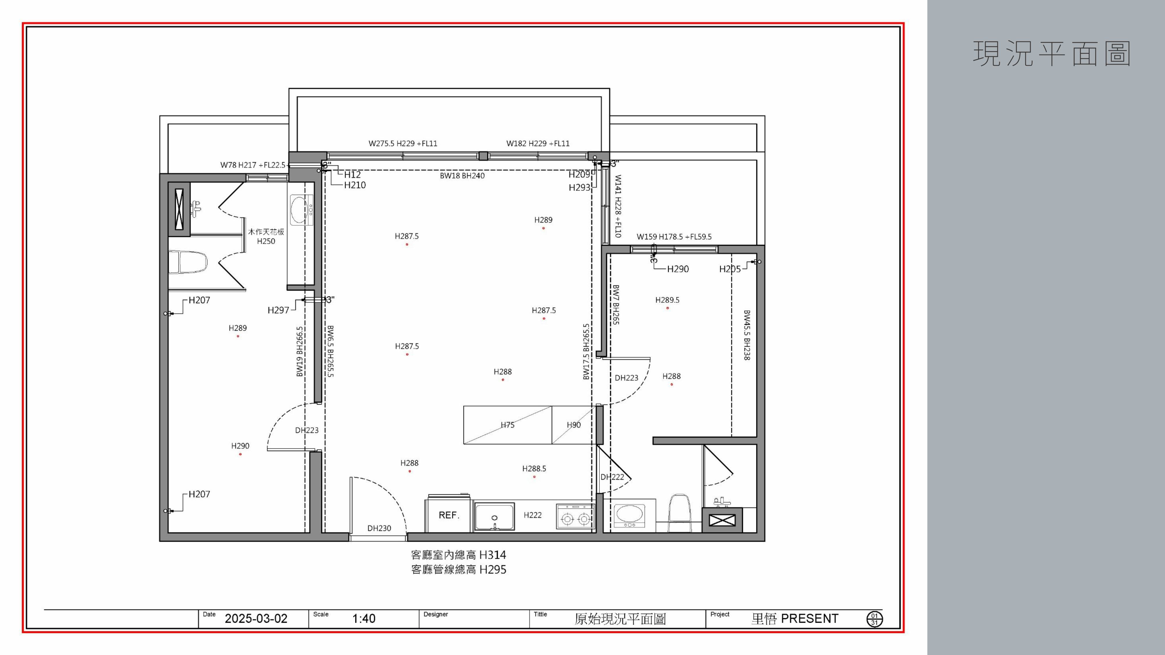
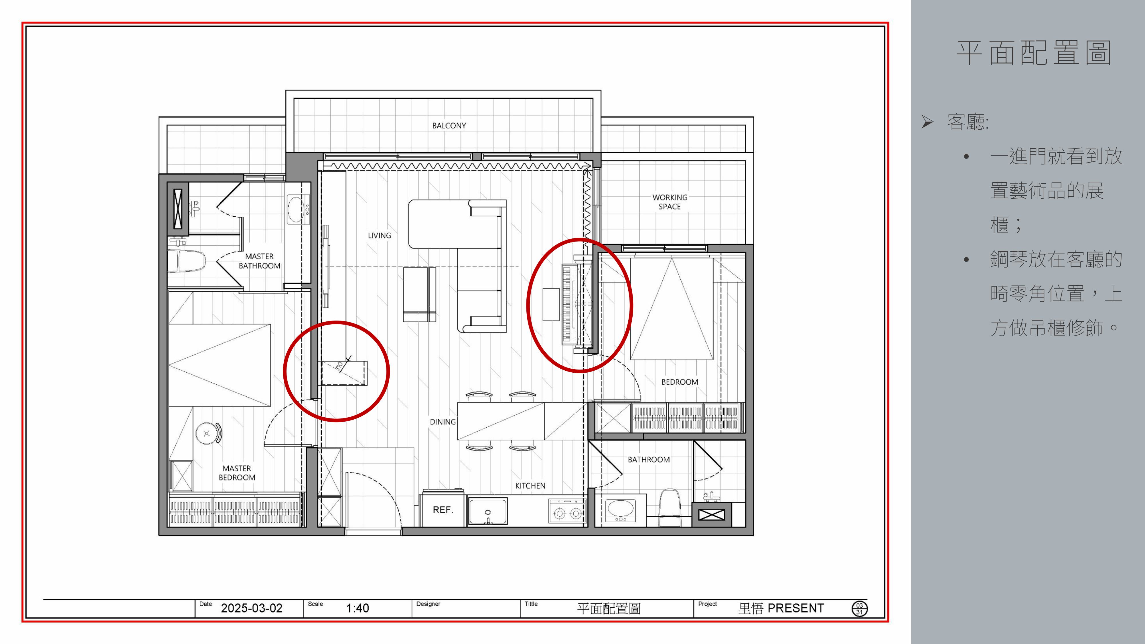
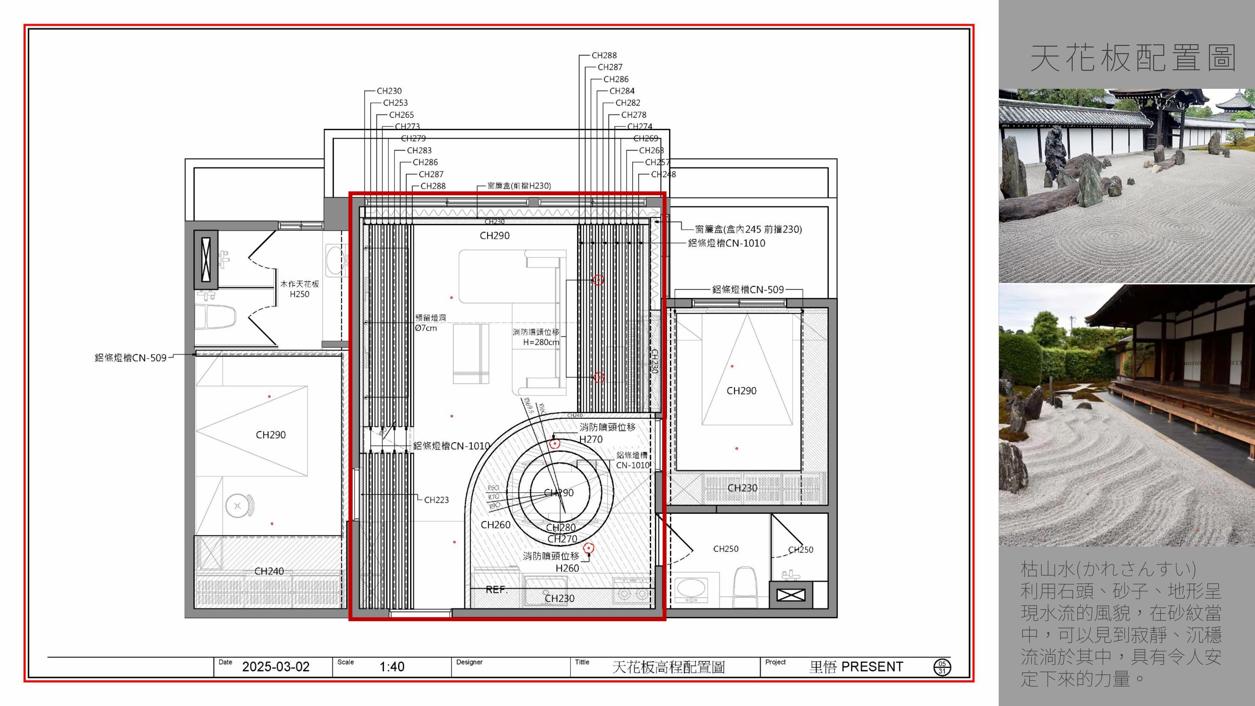
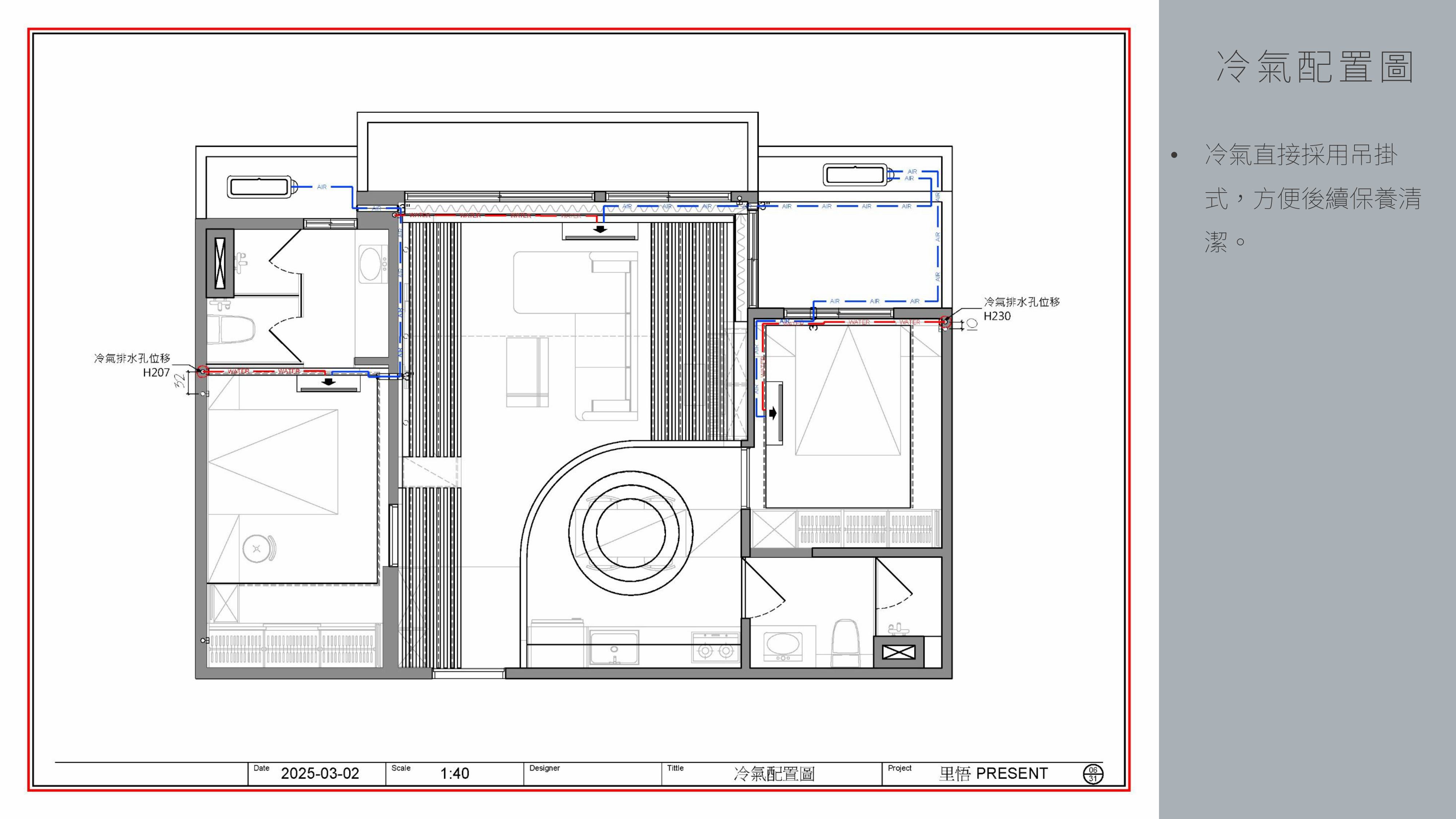
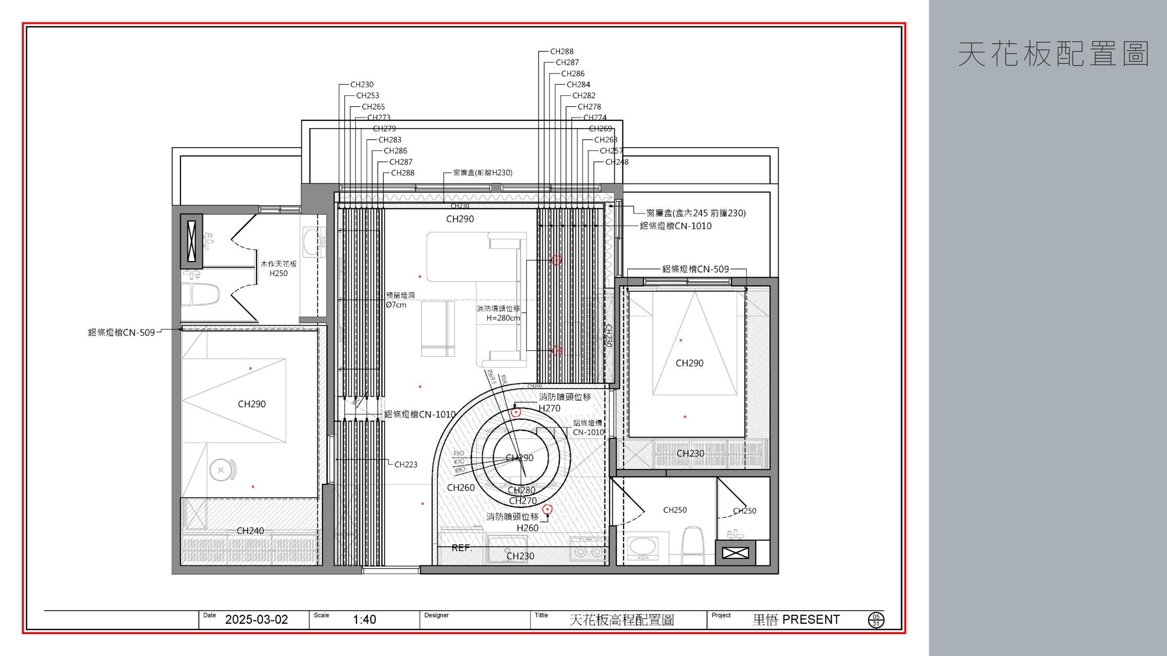
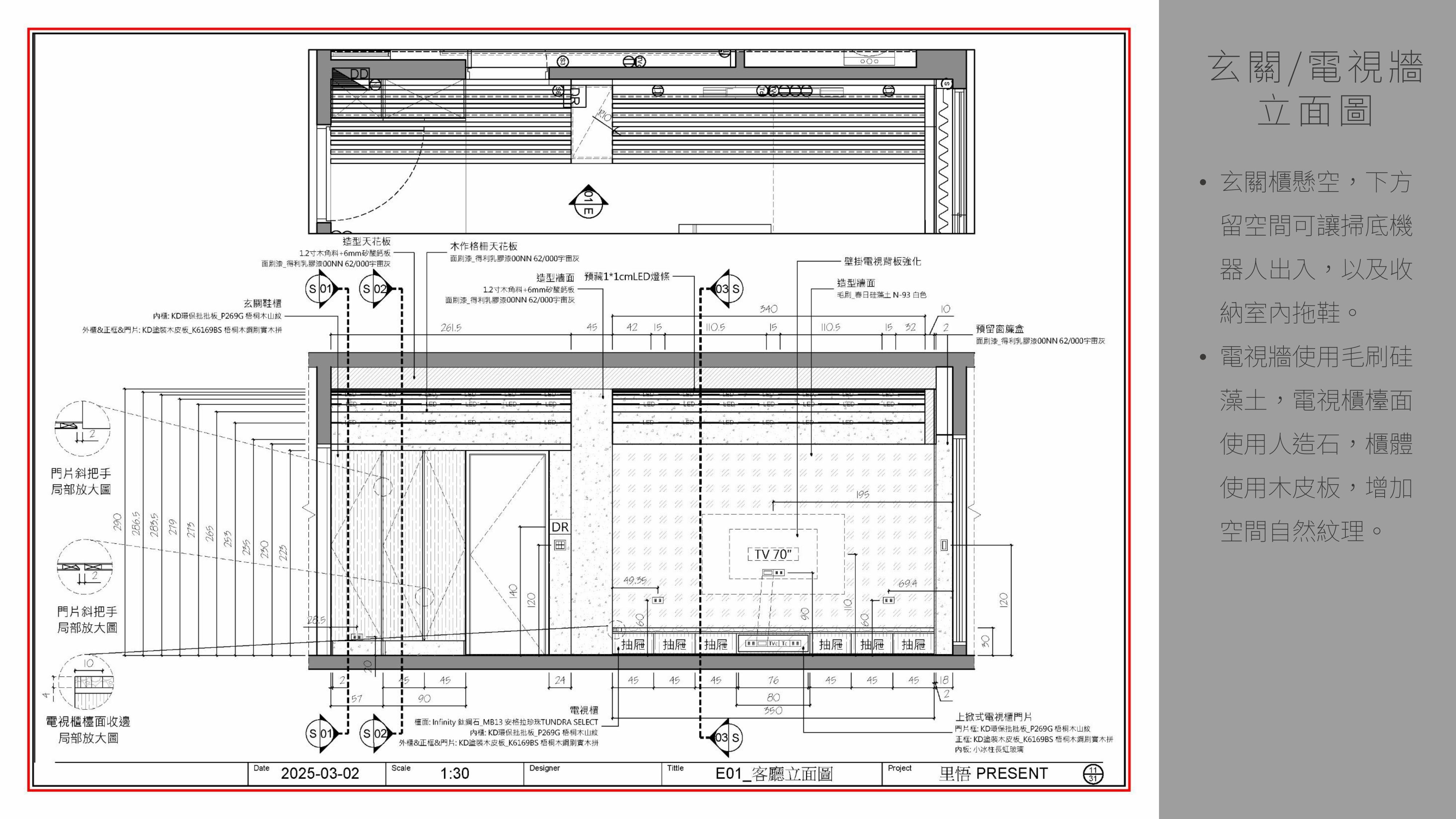
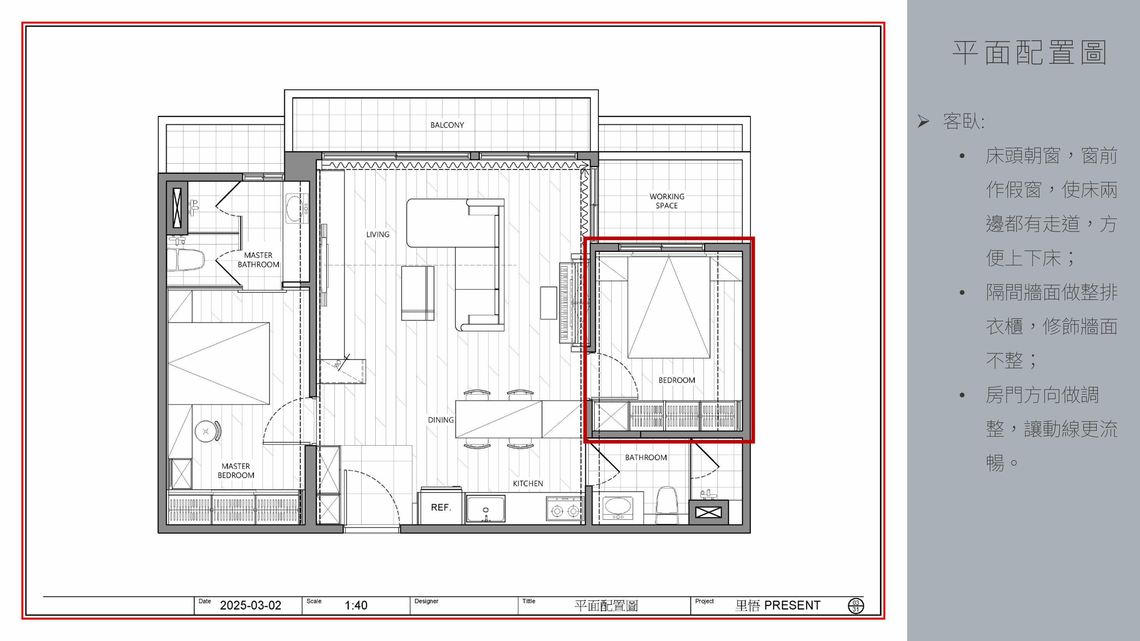
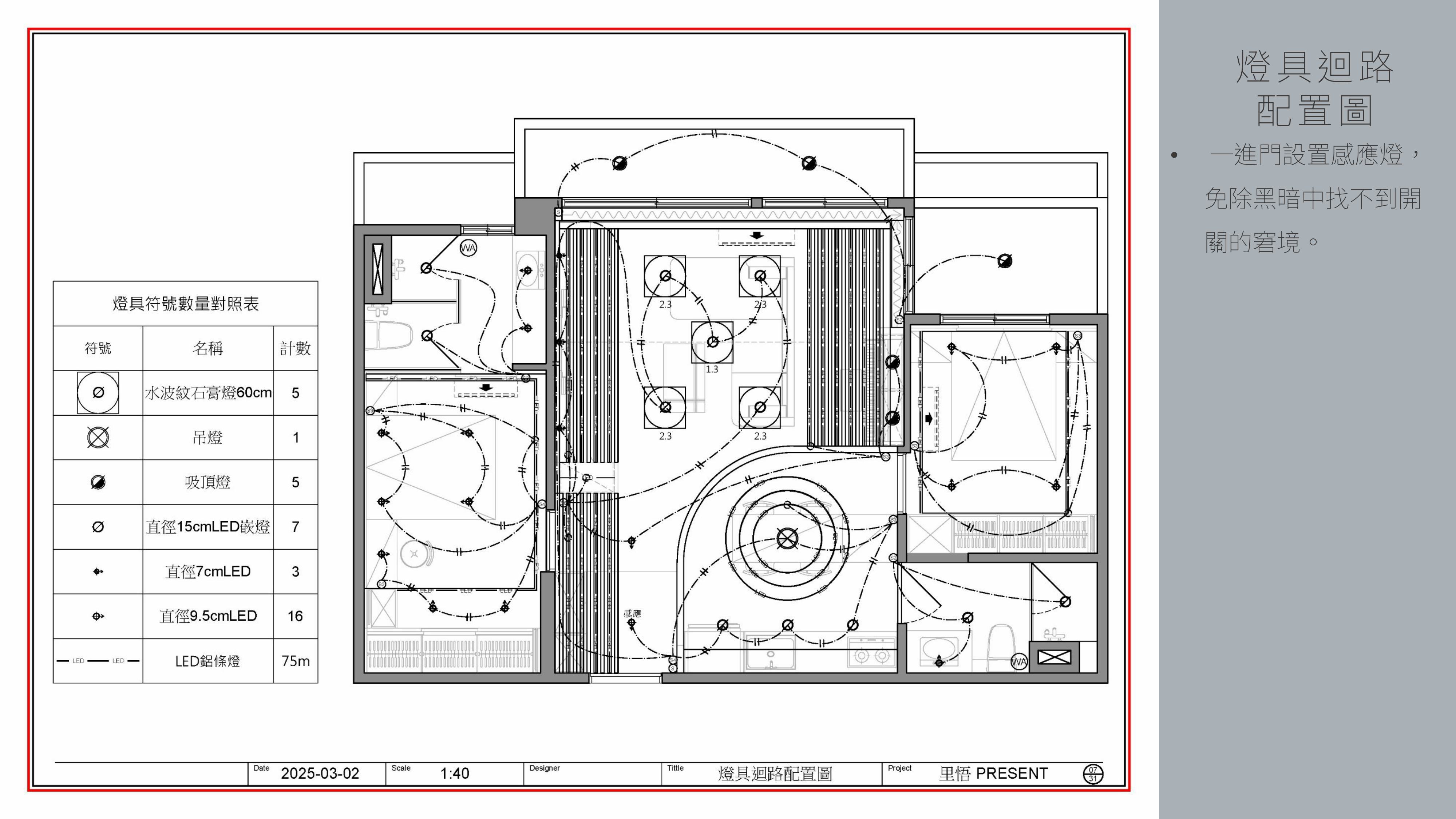
2025/空間設計/里悟 Present
里悟 Present
作品資訊
作者:顏o書
參賽組別:空間設計組
作品名稱:里悟 Present
作品理念
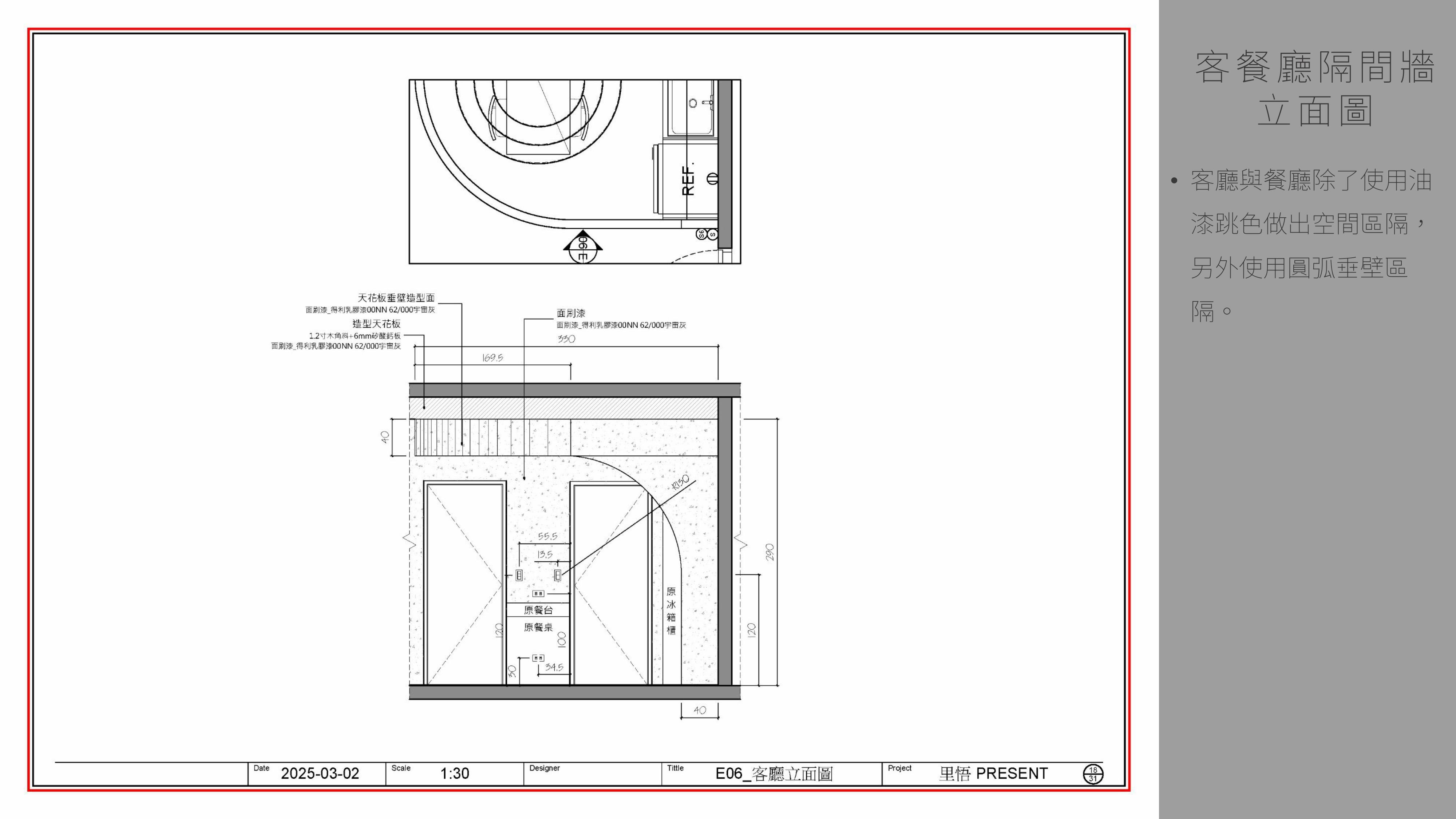
里,居住的地方;悟,明白,理解;隱身於都市叢林中,讓自己沉澱歸零之處,在此覺察當下,在此體悟生活。
評審點評